6802:国道よりアクセスの良い住環境・遊び心の詰まった1LDK+3LDK
- 城ヶ崎~伊豆高原エリア



- 価格
- 1,800万円
- 最寄り駅
- 伊豆高原より約3.2km
- 別荘地
- 浮山温泉郷
- 所在地
- 伊東市八幡野
- 土地面積
- 506㎡(153坪)
- 建物面積
- 146㎡(44坪)
No.6802
おすすめポイント
豊かな緑に彩られ落ち着いた雰囲気の浮山温泉郷別荘地内。国道よりアクセスが良く、比較的平坦な地形にあり定住用としても人気の住環境です。南向きで陽当りが良く、保養所や2世帯住宅としてもご利用可能な本物件は、家族や友人との憩いの場として楽しめるお庭や、露天風呂気分を味わえる浴室など、遊び心の詰まった不動産です。是非現地をご覧になってみてください。
国道よりアクセスの良い住環境・遊び心の詰まった1LDK+3LDK
画像クリックで拡大表示されます。
No.6802
物件詳細
| 価格 | 1,800万円 | 最寄り駅 | 伊豆高原 | 交通 | 伊豆急行線 伊豆高原駅より3.2km 車約6分 | ||
|---|---|---|---|---|---|---|---|
| 所在地 | 伊東市八幡野 | 別荘地 | 浮山温泉郷 | 眺望 | |||
| 土地面積 | 506㎡(153坪) | 地形 | ほぼ正方形 | 地勢 | 平坦・緩傾斜 | 傾斜割合 | 約30% |
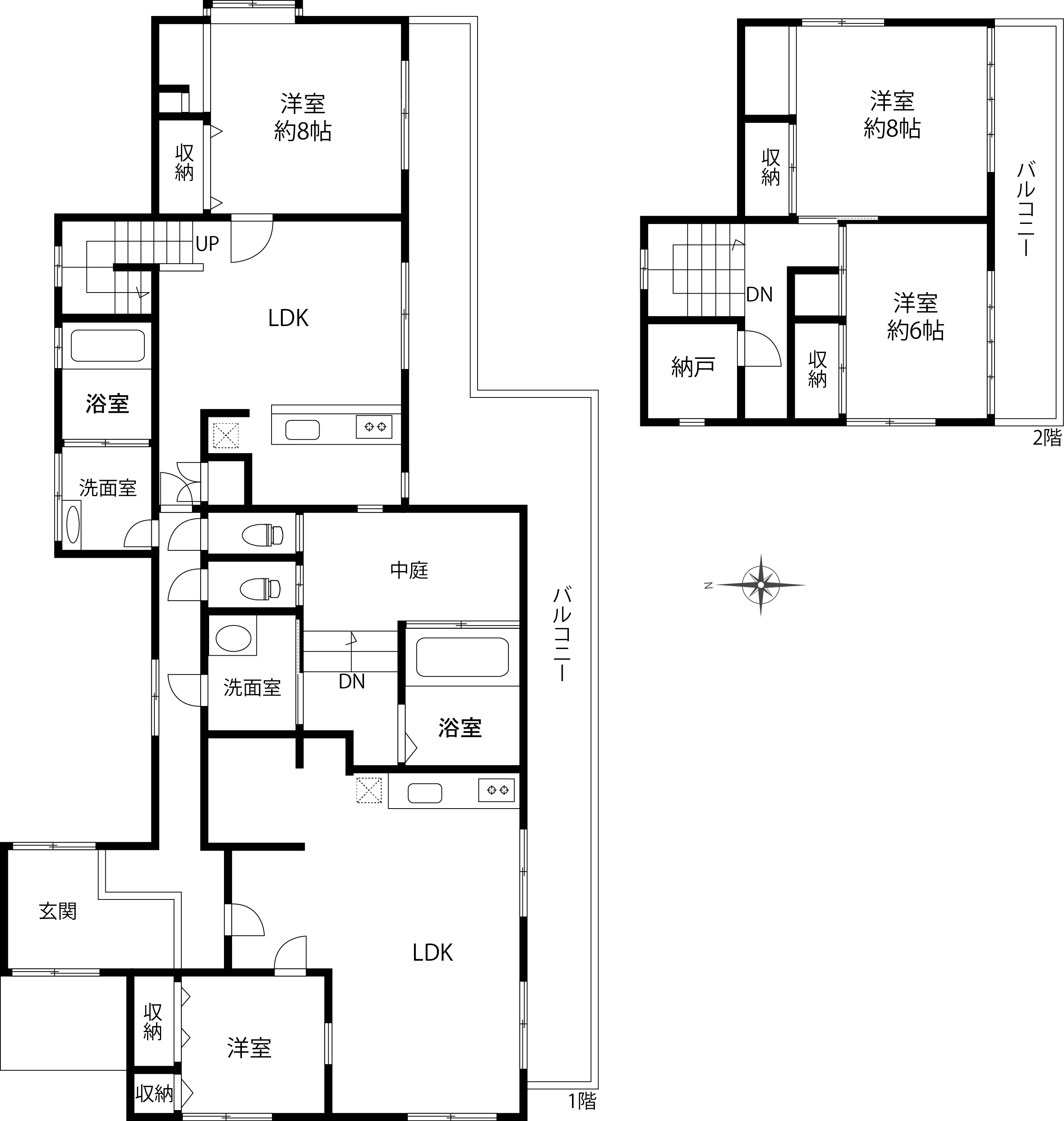
| 建物面積 | 146㎡(44坪) | 築年月 | 昭和46年4月 | 構造・階数 | 木造・2階建て | 間取り | 1LDK+3LDK |
| 接面道路 | 西側 幅員:7m:私道 | 私道負担 | 無 | 駐車場 | 2台 | ||
| 建蔽率 | 20% | 容積率 | 40% | 都市計画 | 非線引 | 用途地域 | 無指定 |
| 他法規制 | 国立公園:第2種特別地域/宅造法区域/ガケ条例 | ||||||
| 管理費等 | 環境管理費:4,000円/月 | 水道 | 私営水道:(使用料10㎥迄1,045円/月) | ||||
| 温泉 | 引込可:(権利金:2,200,000円) (工事金:実費工事代) | 温泉その他 | |||||
| 電気 | 東京電力 | ガス | 個別LPG | 排水 | 個別浄化槽:清掃費用/年 | ||
| 利用状況 | 利用中 | 引渡し時期 | 相談 | 取引形態 | 仲介 | ||
| 備 考 | 建物には経年劣化が存しております。/自然公園法に抵触しております。 | ||||||
●上記価格は全て税込みまたは非課税表示となります。 ●掲載情報と現況が異なる場合は現況優先となります。
●お電話などでお問い合せの際はページ上部にある「物件No.」をスタッフにお伝えください。












































