6822:東南側には海と大島を望む眺望 道路よりフラットな平坦地
- 城ヶ崎~伊豆高原エリア




- 価格
- 1,480万円
- 最寄り駅
- 伊豆高原より約2.9km
- 別荘地
- 東興別荘地
- 所在地
- 伊東市八幡野
- 土地面積
- 330㎡(99.83坪)
- 建物面積
- 109.3㎡(33.06坪)
No.6822
おすすめポイント
道路からフラットに進入できる使い勝手の良い平坦地。陽当たりも良く、広がるお庭はドッグランやガーデニングなど、多彩な楽しみ方が可能です。さらに東南側には海と大島を望む美しい景色が広がり、別荘としても永住としても魅力ある環境です。建物には雨漏れや木部腐食箇所があり修繕が必要ではありますが、手を入れることで魅力を最大限に引き出せる価値ある物件です。ロケーション・利便性・眺望を兼ね備えたおすすめの一軒です。
東南側には海と大島を望む眺望 道路からフラットに進入できる使い勝手の良い平坦地
画像クリックで拡大表示されます。
No.6822
物件詳細
| 価格 | 1,480万円 | 最寄り駅 | 伊豆高原 | 交通 | 伊豆急行線 伊豆高原駅より2.9km 車約7分 | ||
|---|---|---|---|---|---|---|---|
| 所在地 | 伊東市八幡野 | 別荘地 | 東興別荘地 | 眺望 | 海:島(伊豆七島) | ||
| 土地面積 | 330㎡(99.83坪) | 地形 | ほぼ長方形 | 地勢 | 平坦 | 傾斜割合 | 約10% |
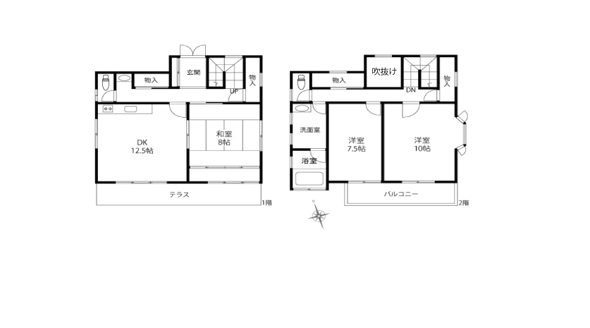
| 建物面積 | 109.3㎡(33.06坪) | 築年月 | 平成4年11月11日 | 構造・階数 | 木造・2階建 | 間取り | 3LDK |
| 接面道路 | 北側 幅員:4.4m:私道 | 私道負担 | 無 | 駐車場 | 1台 | ||
| 建蔽率 | 20% | 容積率 | 60% | 都市計画 | 非線引 | 用途地域 | 無指定 |
| 他法規制 | 国立公園:第3種特別地域/宅造法区域/ガケ条例 | ||||||
| 管理費等 | 地区費:10,000円/年 | 水道 | 公営水道:(使用料20㎥迄2,074円/2ヶ月) | ||||
| 温泉 | - | 温泉その他 | - | ||||
| 電気 | ガス | 個別LPG | 排水 | 個別浄化槽/月 | |||
| 利用状況 | 利用中 | 引渡し時期 | 相談 | 取引形態 | 仲介 | ||
| 備 考 | 建物には雨漏れ・経年劣化が存しており修繕工事が必要です。 | ||||||
●上記価格は全て税込みまたは非課税表示となります。 ●掲載情報と現況が異なる場合は現況優先となります。
●お電話などでお問い合せの際はページ上部にある「物件No.」をスタッフにお伝えください。












































