6836:モダンに変身した昭和のヴィンテージハウス・平家建1LDK NEW
- 城ヶ崎~伊豆高原エリア




- 価格
- 1,820万円
- 最寄り駅
- 伊豆高原より約2.4km
- 別荘地
- 東興別荘地
- 所在地
- 伊東市八幡野
- 土地面積
- 644㎡(194.81坪)
- 建物面積
- 113.40㎡(34.30坪)
No.6836
おすすめポイント
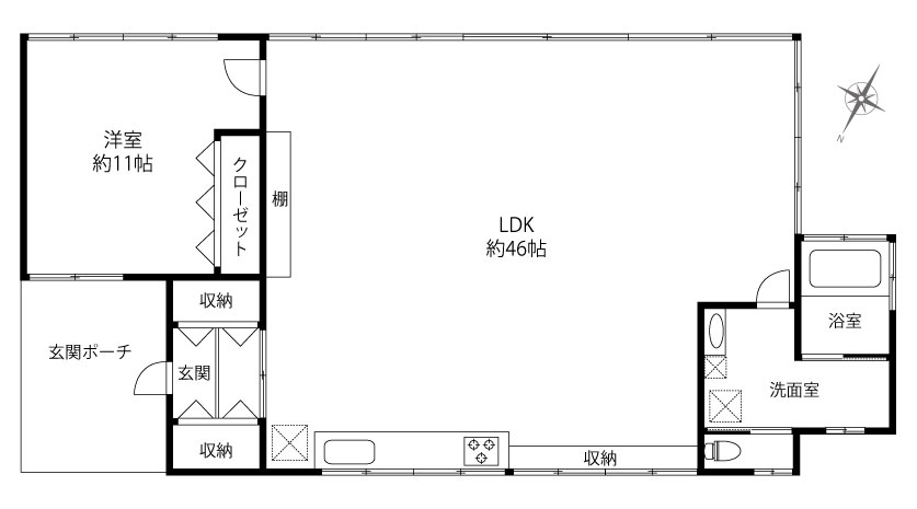
伊豆高原の中心エリアにほど近い、東興別荘地に建つ1LDKの平屋建て不動産です。46畳ある広々とした大空間のLDKはまるでスタジオのような広さ。元々3LDKだった間取りをダイナミックに改装した、リノベーション歴のある平屋のビンテージハウスです。敷地も190坪以上ありフラットなお庭ではガーデニングが楽しめます。また伊豆高原の中心エリアに近いために徒歩圏内には飲食店が多く、周辺環境もお勧めのポイントです。
モダンに変身した昭和のヴィンテージハウス・平家建て1LDK
画像クリックで拡大表示されます。
No.6836
物件詳細
| 価格 | 1,820万円 | 最寄り駅 | 伊豆高原 | 交通 | 伊豆急行線 伊豆高原駅より2.4km 車約6分 | ||
|---|---|---|---|---|---|---|---|
| 所在地 | 伊東市八幡野 | 別荘地 | 東興別荘地 | 眺望 | 海 | ||
| 土地面積 | 644㎡(194.81坪) | 地形 | ほぼ長方形 | 地勢 | 高台平坦 | 傾斜割合 | 約10% |
| 建物面積 | 113.40㎡(34.30坪) | 築年月 | 昭和44年5月25日 | 構造・階数 | 木造・平屋建て | 間取り | 1LDK |
| 接面道路 | 北東側 幅員:約4.3m:私道 | 私道負担 | 有 約36㎡ | 駐車場 | 2台 | ||
| 建蔽率 | 20% | 容積率 | 60% | 都市計画 | 非線引 | 用途地域 | 無指定 |
| 他法規制 | 国立公園:第3種特別地域/宅造法区域/ガケ条例 | ||||||
| 管理費等 | 地区費:10,000円/年 | 水道 | 公営水道:(使用料20㎥迄2,074円/2ヶ月) | ||||
| 温泉 | - | 温泉その他 | - | ||||
| 電気 | 東京電力 | ガス | 個別LPG | 排水 | 個別浄化槽:清掃費用/年 | ||
| 利用状況 | 利用中 | 引渡し時期 | 相談 | 取引形態 | 仲介 | ||
| 備 考 | 建物には経年劣化が存しております。 | ||||||
●上記価格は全て税込みまたは非課税表示となります。 ●掲載情報と現況が異なる場合は現況優先となります。
●お電話などでお問い合せの際はページ上部にある「物件No.」をスタッフにお伝えください。












































