6890:ドッグペンション・客室は全9部屋+オーナールーム・約130㎡の芝生ドッグラン NEW

  • 城ヶ崎~伊豆高原エリア
  • 眺望あり
  • ガーデニング・菜園
  • 平坦地
価格
4,580万円 (税込)
最寄り駅
城ヶ崎海岸より約1.3km
別荘地
伊豆急伊豆高原地区(1次~27次)
所在地
伊東市八幡野
土地面積
1144㎡(346.06坪)
建物面積
404.10㎡(122.24坪)
No.6890

おすすめポイント

令和8年3月まで営業していたドッグペンション。客室は全9部屋に加え、オーナールームを備えたゆとりある構成で、各客室にはユニットバスを完備しております。別棟には趣の異なる2つの露天風呂を設け、滞在に癒しと特別感を演出。2階客室からは海を望むロケーションも魅力です。約130㎡の芝生ドッグランは、愛犬とともにのびのびと過ごせる快適な空間。ペンションとしての再開はもちろん、保養施設やセカンドハウスなど、多彩な用途にご検討いただける物件です。

  • 眺望あり
  • 平坦地
  • ガーデニング・菜園

ドッグペンション・客室は全9部屋+オーナールーム・約130㎡の芝生ドッグラン

画像クリックで拡大表示されます。

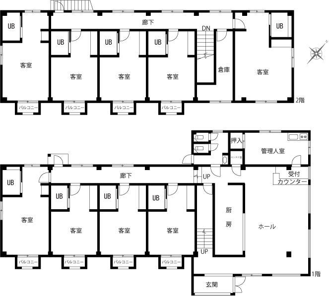
間取り図

図面クリックで拡大表示されます。

エリアマップ

No.6890

物件詳細

価格 4,580万円 (税込) 最寄り駅 城ヶ崎海岸 交通 伊豆急行線 城ヶ崎海岸駅より1.3km 徒歩約3分
所在地 伊東市八幡野 別荘地 伊豆急伊豆高原地区(1次~27次) 眺望
土地面積 1144㎡(346.06坪) 地形 ほぼ長方形 地勢 平坦・緩傾斜 現況用途 元ペンション
建物面積 404.10㎡(122.24坪) 築年月 昭和60年5月15日 間取り 客室9部屋+オーナールーム+ホール 構造・階数 鉄骨造・2階建
接道状況 南東側 幅員:6.5m:私道 私道負担 駐車場 8台
建蔽率 20% 容積率 60% 都市計画 非線引 用途地域 無指定
他法規制 国立公園:第3種特別地域/宅造法区域/ガケ条例
管理費等 親和会費:22,800円/年 水道 私営水道:(使用料口径13mm:10㎥迄1,133円/月)
温泉 温泉その他
電気 東京電力 ガス 個別LPG 排水 個別浄化槽:清掃費用/年
利用状況 居住中 引渡し時期 相談 取引形態 仲介
備 考 建物には経年劣化が存しております。/自然公園法に抵触しています。

●上記価格は全て税込みまたは非課税表示となります。 ●掲載情報と現況が異なる場合は現況優先となります。
●お電話などでお問い合せの際はページ上部にある「物件No.」をスタッフにお伝えください。

ページの先頭へ